






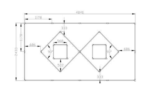
Lumiluxe – Luz LED en forma de diamante con marco y núcleo cuadrado | 6500K
IVA incluido. Los gastos de envío se calculan en la caja
Seleccionar opciones
Campaña de recaudación de fondos de John Barber & Sons
Apoya a los huérfanos de África con tu compra
Cada semana, parte de nuestra recaudación se destina a África, donde apoyamos a los huérfanos distribuyendo alimentos. Gracias a las compras que nos haces, entre todos ayudamos a enriquecer la vida de muchos niños. Además, nuestras donaciones permiten abrir un nuevo pozo de agua potable cada 10 semanas, lo que mejora notablemente la calidad de vida de la población local.


